Aurélien PIQUET Négociateur
Télécharger la fiche
Prix en baisse

Maison 5 pièce(s) 4 chambre(s) 80.46 m²

Inxent (62170)
109 000 € Référence AP224

A propos de ce bien

!! NOUVEAU PRIX !!
L'Agence des Remparts vous propose à la vente cette maison d'habitation individuelle à moderniser, située dans le charmant village d'Inxent (non concernée par les inondations de l'hiver précédent).

Profitez des aides à la rénovation énergétique pour améliorer la performance de ce logement ! Éligible à MaPrimeRénov’, aux aides de l’Anah, ce bien offre des opportunités pour vos travaux d’isolation, chauffage ou ventilation.

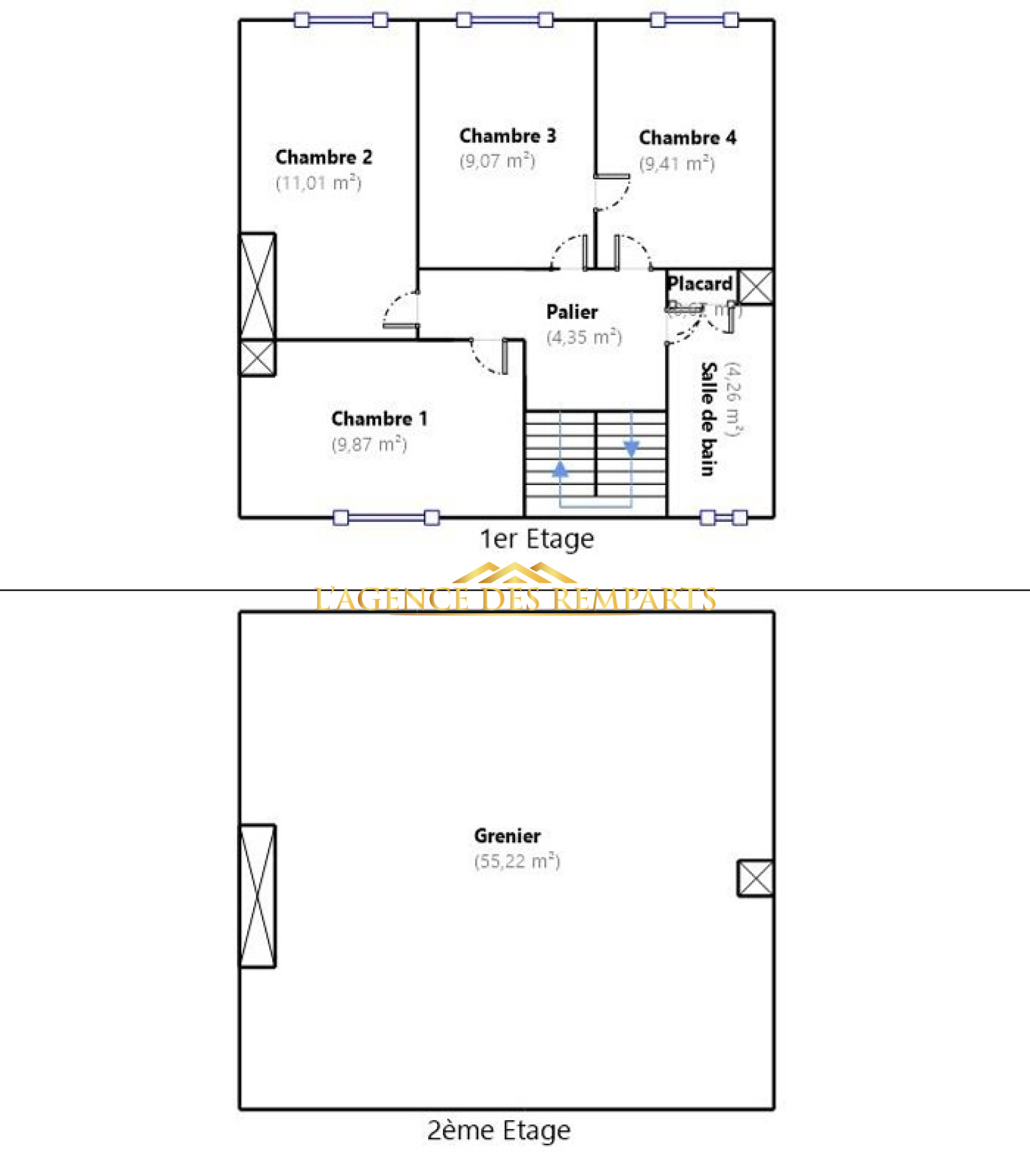
D'une surface habitable de 80.46 m², elle se compose:
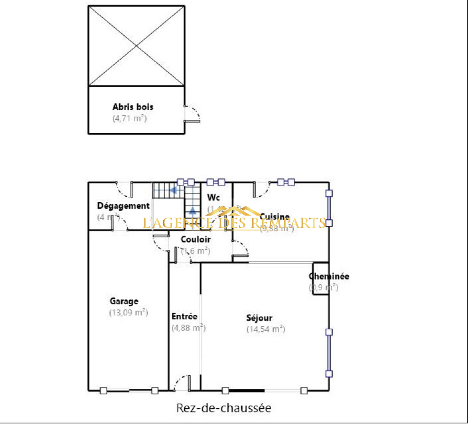
Au RDC: D'un hall d'entrée sur séjour, cuisine semi-ouverte, un couloir, un WC, un garage.
Au 1er (sur dalle béton) un palier desservant: 4 chambres et une salle de bains.
Menuiserie en bois simple vitrage essentiellement, volets roulants manuels à l'étage et motorisé pour la baie vitrée (pvc double vitrage) du rdc.
Chauffage central fioul et insert à bois.
Assainissement autonome non conforme.
Une dépendance - une cour/terrasse et jardin exposée sud/ouest.
Le tout cadastré sur 168 m².
Idéal investisseur, primo-accédant etc ...
A visiter sans attendre avec L'Agence des Remparts, contactez Aurélien Piquet votre agent immobilier, disponible au O6 64 47 59 16, joignable 7 jours/7.

Caractéristiques de ce bien

  • Surface 80,46 m²
  • carrez 80,46 m²
  • terrain 168 m²
  • séjour 14,54 m²
  • 4 chambre(s)
  • 1 salle(s) de bain
  • construit en 1969
  • cuisine séparée (semi-équipée)
  • Chauffage central : chaudière (fioul)
  • Chauffage individuel : cheminée (bois)
  • 1 garage(s)
  • 2 parking(s)
  • exposition Sud
  • 1 niveau(x)
  • vue Jardin - Cour

Diagnostics énergétiques

Consommation énergétique
A B C D E F G
Emission de gaz à effet de serre
A B C D E F G

Logement à consommation énergétique excessive : classe G

Montant estimé des dépenses annuelles d'énergie pour un usage standard est compris entre 3 880 € et 5 320 € . Prix moyens des énergies indexés sur les années 2021, 2022 et 2023 (abonnements compris).

Informations financières

Prix de vente honoraires TTC inclus 109 000 €
Prix de vente honoraires TTC exclus 100 000 €
Honoraires TTC à la charge acquéreur 9 %
Taxe foncière annuelle 575 €

Calcul des mensualités

* Champs obligatoires